Appartement F3 - PARIS 19
Description
APPARTEMENT TRAVERSANT AVEC JARDIN PRIVATIF AU CŒUR DU 19e ARRONDISSEMENT DE PARIS
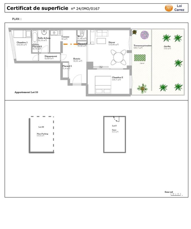
Découvrez ce magnifique appartement traversant T3 de 71 m² habitables, situé dans un emplacement prisé du 19e arrondissement de Paris. Bénéficiant d'une belle luminosité, ce bien unique dispose d'un vaste jardin privatif arboré d'environ 80 m² et d'une terrasse de 20 m² orientée sud-ouest, idéale pour profiter du calme en plein cœur de la capitale.
L'appartement se compose d'une entrée avec rangements intégrés, d'un spacieux salon-salle à manger ouvert sur la terrasse, et d'une cuisine indépendante entièrement équipée. La partie nuit offre deux chambres confortables, une salle de bain et des WC séparés.
Le bien est équipé d’un chauffage au fioul ainsi qu’une cave, offrant des espaces de rangement supplémentaires.
Possibilité d'acquérir en sus une place de parking privative de 11 m² dans le garage fermé de l'immeuble ainsi qu'un studio de 31 m² attenant à l'appartement.
À proximité immédiate des commerces, écoles et transports, cet appartement allie confort et praticité. Ne manquez pas cette opportunité rare de vivre dans un espace verdoyant au cœur de Paris.
Contactez-nous dès aujourd’hui pour plus d’informations !
Dossier complet sur demande.
| Détails | |
|---|---|
| Nombre de pièces | 3 |
| Nombre de chambres | 2 |
| Places de Parking | 1 |
| Places en Extérieur | 1 |
| Étage | 1 er |
| Ascenseur | Oui |
| Terrasse | 20 m² |
| Surface Habitable | 71 m² |
| Jardin | 100 m² |
| Piscine | Non |
| Accessibilité Handicapé | Non |
| Proche Commodités | Non |
| Chauffage | Fuel |
| Année Construction | 1965 |
| Informations DPE | |
|---|---|
| DPE | E (222) |
| GES | E (67) |
| Date | 20240417 |
| Estimation des coûts annuels d'énergie du logement | Entre 1210€ et 1670€ Prix moyens des énergies indexés au 2021 (abonnements compris) |
| Informations Complémentaires | |
|---|---|
| A la charge | Vendeur |
| Les Honoraires d'agence seront intégralement à la charge du vendeur |

DJEMILI Clément
Référence : 20241011
795 000 €
Biens Similaires

Cliquez pour plus de détails
Plus de détails1 940 000 €
- 123 m²
- 4 pièce(s)
- 3 chambre(s)
Une adresse confidentielle et prestigieuse à Sainte-Maxime – Appartement de standing avec vue panoramique sur le Golfe de Saint-Tropez à 2 m...

Cliquez pour plus de détails
Plus de détails795 000 €
- 71 m²
- 3 pièce(s)
- 2 chambre(s)
APPARTEMENT TRAVERSANT AVEC JARDIN PRIVATIF AU CŒUR DU 19e ARRONDISSEMENT DE PARIS
Découvrez ce magnifique appartement traversant T3 de 7...

Cliquez pour plus de détails
Plus de détails1 196 000 €
- 121 m²
- 6 pièce(s)
- 4 chambre(s)
Duplex d’Exception – 120 m² – Terrasse Tropézienne avec Vue Mer – au Cœur de Sainte-Maxime
Idéalement...